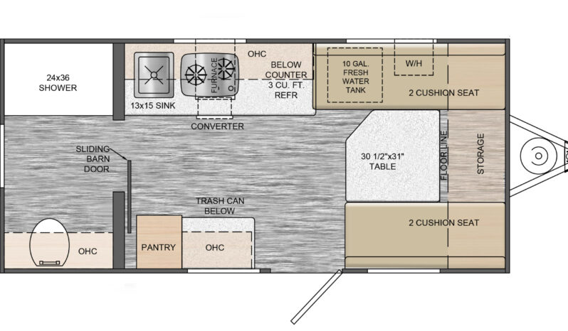
Rove Lite
Travel Lite RV is making adventure more affordable with the Rove Lite — an ultralightweight travel trailer line. Featuring an aerodynamic teardrop design crafted from revolutionary Hydro-Lite material, the Rove Lite is one of the most affordable travel trailers on the market and light enough to pull behind even the smallest of vehicles.




